Offering:
*subject to availabilityRenter's Insurance
To protect your belongings in case of fire, theft, or damage, you need your own insurance policy, called an HO4 renter's insurance policy. You also need liability coverage for damages caused by negligence. Contact your Insurance agent today. If you do not have an agent and don’t wish to look into other companies you can apply through Assurant Insurance.
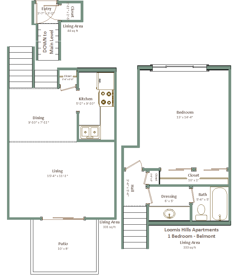
Property Features
Dogs and Cats
Welcome
Pet policy and restrictions apply
Offstreet
Parking
One free spot included with rent
Emergency Maintenance
24-Hr Emergency Maintenance
Unit Amenities
- Heat included
- Cooking gas included
- Hot water included
- Water & sewer included
- Appliances
- Off-street parking
- On bus line
- Laundry facilities
- Air conditioning equipment
- Small pets welcome
- Patio or balcony
- Cable offered
- On-site management & maintenance services
- Professional management & leasing staff
- Storage lockers
